Проект реализован по индивидуальному заказу и спроектирован с учётом климатических условий региона строительства (IВ климатический район, снеговой район V). Дом предназначен для круглогодичного проживания семьи и отвечает современным требованиям к комфорту, энергоэффективности и безопасности.
Технические характеристики:
Общая площадь: 150,5 м²
Жилая площадь: 84,1 м²
Застроенная площадь: 109,3 м²
Этажность: 2 этажа
Строительный объём: 905 м³
Фундамент: утеплённая шведская плита (УШП)
Наружные стены: газобетон D400
Перекрытия: сборно-монолитные
Кровля: двускатная, покрытие — металлочерепица
Планировка: На первом этаже расположены: гостиная-кухня, спальня, ванная, котельная, холл, тамбур, терраса и крыльцо. На втором этаже — четыре спальни, холл и ванная. Общая площадь первого этажа: 92,5 м² Общая площадь второго этажа: 57,9 м²
Комплектация: 1. Фундамент
Утеплённая шведская плита (УШП)
Включены: земляные работы, подбетонка, утепление, армирование, бетонирование, монтаж закладных под инженерные сети (канализация, вода, электричество)
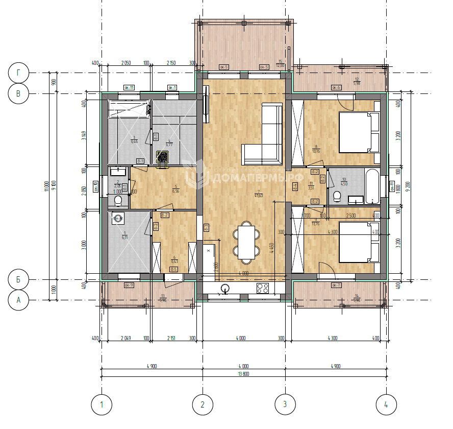
Проект разработан по индивидуальному заказу и учитывает климатические особенности региона строительства (IВ климатический район, снеговой район V). Дом рассчитан на круглогодичное проживание и спроектирован с приоритетом энергоэффективности, простоты эксплуатации и надежности конструкций.
Технические характеристики:
Общая площадь: 141,7 м²
Застроенная площадь: 164,0 м²
Этажность: 1 этаж
Строительный объем: 700 м³
Фундамент: утепленная шведская плита (УШП)
Наружные стены: газобетон D500 (300 мм) + утепление 100 мм
Кровля: скатная, покрытие — металлочерепица
Планировка На одном этаже располагаются: кухня-гостиная, три спальни, два санузла, помывочная, парная, комната отдыха, котельная, тамбур, коридор, терраса и три крыльца. Общая площадь помещений — 141,7 м².
Комплектация:
Фундамент: утепленная шведская плита с утеплением, гидроизоляцией, армированием и прокладкой закладных под инженерные системы
Стены: несущие и перегородки из газобетона, утепление наружных стен по фасаду
Кровля: стропильная система, утепление 200 мм, гидроветрозащита, металлочерепица, подшивка, водосточная система
Окна: ПВХ-стеклопакеты с монтажом, откосами и подоконниками
Двери: входная металлическая, межкомнатные — не предусмотрены
Инженерные системы: черновая разводка электричества (кабель в гофре, щиток, автоматы), разводка воды и канализации по дому, укладка теплого пола по всей жилой части дома, установка гребенки (без котла и бойлера)
Фасад: штукатурка по армирующей сетке, окраска
Наружные элементы: три крыльца, терраса, отмостка
Особенности: Проект ориентирован на практичное использование пространства и энергоэффективную эксплуатацию. Утепление стен и крыши, прокладка инженерных сетей и надежная кровля обеспечивают комфорт при любых погодных условиях. Все применяемые материалы сертифицированы, соответствуют санитарным и противопожарным нормам.
Стоимость строительства Итоговая стоимость объекта составила 8 903 000 рублей. Цена актуальна на 1 июня 2025 года и включает все основные этапы: от фундамента до фасадной отделки с полной инженерной подготовкой под чистовую отделку.
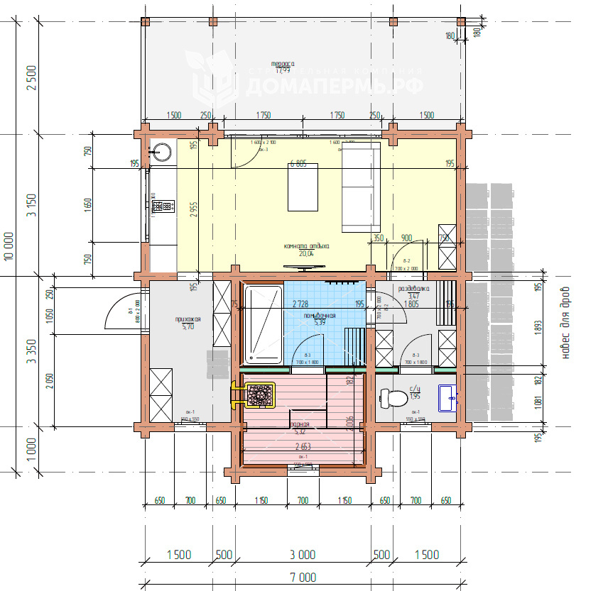
Проект реализован по индивидуальному заказу и разработан с учетом климатических особенностей региона строительства (IВ климатический район, снеговой район V). Постройка предназначена для круглогодичного использования. Используются энергоэффективные решения, экологичные материалы и продуманная конструктивная схема.
Технические характеристики:
Общая площадь: 59,86 м² (с учетом террасы)
Застроенная площадь: 66,00 м²
Этажность: 1 этаж
Строительный объем: 225,0 м³
Фундамент: утепленная шведская плита (УШП)
Наружные стены: профилированный брус 195×145 мм
Кровля: скатная, покрытие — металлочерепица
Перекрытия: деревянные балки
Планировка: Прихожая, санузел, комната отдыха, помывочная, парная, раздевалка и терраса.
Комплектация:
Фундамент: утепленная шведская плита с армированием, утеплением, гидроизоляцией и прокладкой инженерных сетей
Стены: профилированный брус камерной сушки, сборка с учетом усадки (1–3%)
Окна: ПВХ с двухкамерными стеклопакетами, установлены с доборами и откосами
Двери: входная металлическая и деревянные двери внутри (по согласованию)
Инженерные системы: черновая электрика: кабель в гофре, подрозетники, щиток с автоматами, водоснабжение и канализация — черновая разводка, теплый пол по помещению прихожей, комнаты отдыха, помывочной и с/у
Фасад: сохранение внешнего вида бруса, герметизация швов
Наружные элементы: терраса под общей кровлей, выполненная в едином стиле с основным зданием
Особенности: Использован сухой профилированный брус, прошедший антисептическую и огнебиозащитную обработку. Планировочные решения адаптированы под реалии российского климата, а конструктив гарантирует долговечность и минимальные затраты на обслуживание.
Стоимость строительства: Итоговая стоимость объекта составила 2 842 774 рубля. Цена актуальна на 1 июня 2025 года и включает: фундамент, коробка, кровля, окна, двери, фасад и черновая инженерия. Внутренняя отделка и оборудование не входят в стоимость.
Каталог проектов
Адаптируем любой проект или разработаем новый под ваши пожелания
Кровля: металлочерепица, утепление 250 мм, паро- и гидроизоляция
Особенности: – адаптирована под климат Пермского края (снеговая и ветровая нагрузки) – экологичные и безопасные материалы – возможна индивидуальная доработка проекта
Стоимость указана без покраски и чистовой отделки. Для расчета стоимости в других комплектациях звоните по телефону: 8 (342) 255-44-30
Баня 59,9 м² с комнатой отдыха и террасой Уютная баня с полноценной планировкой — для загородного участка или дачи. Пространство спроектировано с акцентом на комфорт и сезонную универсальность. Характеристики:
Особенности: – адаптация под климат Пермского края – экологичные материалы и противопожарная защита – продуманная теплоизоляция и комфортная высота потолков – возможны индивидуальные изменения планировки
Стоимость указана без покраски и чистовой отделки. Для расчета стоимости в других комплектациях звоните по телефону: 8 (342) 255-44-30
Баня 47,7 м² с антресолью и просторной комнатой отдыха Универсальный проект бани из профилированного бруса, спроектированный для комфортного отдыха и сезонной или круглогодичной эксплуатации. Включает второй уровень — антресоль, которую можно использовать как хозпомещение. Характеристики:
Фундамент: существующий (возможно уточнение или устройство нового)
Стены: профилированный брус 195×145 мм
Кровля: мягкая черепица с многослойным утеплением
Потолки: до 2,8 м
Отделка: вагонка, утепление пола и крыши, паро- и гидроизоляция
Особенности: – дополнительное пространство на антресоли – усиленное утепление и влагозащита – подготовлено под установку печи и инженерии – подходит для северных условий (снеговой район V)
Стоимость указана с покраской, без чистовой отделки. Для расчета стоимости в других комплектациях звоните по телефону: 8 (342) 255-44-30
Дом из бруса 147,5 м² с террасой и тремя спальнями
Двухэтажный дом 147,5 м² с террасой и тремя спальнями Проект комфортного загородного дома для круглогодичного проживания. Включает продуманную зону отдыха, три спальни, просторную кухню-гостиную и открытую террасу. Характеристики:
Окна и двери: индивидуальный подбор, по согласованию
Особенности: – рассчитан на климат V снегового и II ветрового районов – энергоэффективное решение: утепление, влагозащита, пароизоляция – проект соответствует экологическим и противопожарным нормам – возможно адаптировать под участок и пожелания заказчика
Стоимость указана в комплектации «под ключ» без чистовой отделки. Для расчета стоимости в других комплектациях звоните по телефону: 8 (342) 255-44-30
Дом 101,1 м² с двумя спальнями и просторной кухней-гостиной Современный одноэтажный дом из клееного бруса с рациональной планировкой, рассчитанный для круглогодичного проживания. Характеристики:
Утепление пола и потолка: Эковер Лайт 35 (200 мм) + Изоспан В
Особенности: – продуманная теплоизоляция и энергоэффективность – безопасные и экологичные материалы – адаптация под климат V снегового и II ветрового районов – возможна доработка проекта под индивидуальные требования
Стоимость указана в комплектации «под ключ» без покраски и чистовой отделки. Для расчета стоимости в других комплектациях звоните по телефону: 8 (342) 255-44-30
Дом 235,7 м² с тремя этажами, террасой и тремя спальнями Просторный кирпичный дом с мансардой и удобной планировкой для семьи. Подходит для постоянного проживания, работы и отдыха. Характеристики:
Стены: газобетон 300 мм + утепление 50 мм + облицовочный кирпич 120 мм
Перекрытия: сборно-монолитные
Кровля: металлочерепица, уклон 40°
Высота потолков: до 2,75 м
Климатическая адаптация: V снеговой, II ветровой район
Особенности: – кабинет и полноценное мансардное помещение – усиленная тепло- и влагоизоляция – просторные комнаты и функциональные переходы – возможно адаптировать планировку под запрос заказчика
Стоимость указана в комплектации «под ключ» без чистовой отделки. Для расчета стоимости в других комплектациях звоните по телефону: 8 (342) 255-44-30
Двухэтажный дом 272,5 м² с гаражом, кабинетом и тремя спальнями Просторный дом для семьи с удобной планировкой, гаражом и террасой. Включает кабинет на первом этаже и три спальни на втором. Продуманные зоны хранения и котельная делают проект функциональным и готовым к круглогодичному проживанию. Характеристики:
Климатическая адаптация: снеговой район V, ветровой район II
Особенности: – кабинет на первом этаже – гараж и навес под одной кровлей – все спальные комнаты изолированы – проект адаптирован под суровые климатические условия
Стоимость указана в комплектации «под ключ» без чистовой отделки. Для расчета стоимости в других комплектациях звоните по телефону: 8 (342) 255-44-30
Дом 154,7 м² с тремя спальнями, террасой и второй светлой зоной Современный одноэтажный дом с продуманной планировкой и просторной кухней-гостиной, объединённой с обеденной зоной. Подходит для комфортного загородного проживания семьи из 3–5 человек. Характеристики:
Стены: газобетонные блоки с утеплением и облицовкой
Кровля: металлочерепица
Перекрытия: деревянные, утеплённые
Высота потолков: до 2,95 м
Климатическая адаптация: V снеговой, II ветровой район
Особенности: – большая гостиная с выходом на террасу – высокий потолок и вторая светлая зона – два санузла и отдельная топочная – возможно внесение изменений под участок
Стоимость указана в комплектации «под ключ» с чистовой отделкой. Для расчета стоимости в других комплектациях звоните по телефону: 8 (342) 255-44-30
Выполненные объекты ДомаПермь
Обзоры и отзывы на наши объекты
Двухэтажный дом в Ласьве | Отзыв заказчика и обзор готового дома
Как построить дом мечты проще и быстрее, чем ожидали. Отзыв наших заказчиков
Проектирование вашего дома: этапы, состав проекта и зачем он необходим
15 лет проектируем и строим загородные дома и бани в Перми и Пермском крае. Используем проверенные материалы, энергоэффективные решения и актуальные конструктивные подходы.
Прозрачно формируем смету и фиксируем цену в договоре, объясняем все этапы и соблюдаем сроки. Наша цель — не просто построить дом, а создать пространство, в котором хочется жить.
Нужна консультация или хотите обсудить свой проект?